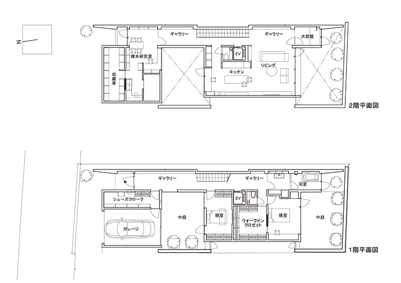
平面図

08浜田山の家.jpg