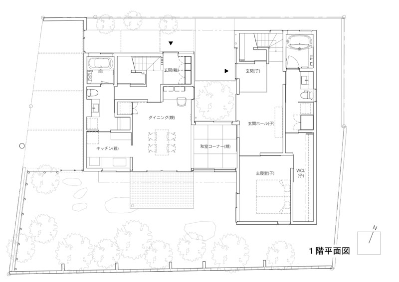
1階平面図

IA1.jpg