遠藤誠建築設計事務所
MAKOTO ENDO ARCHITECTS

MAKOTO ENDO ARCHITECTS


青葉台KM邸 <前のページ 次のページ>
-公園の緑を借景とするスキップフロアの家-

 
 
 
 

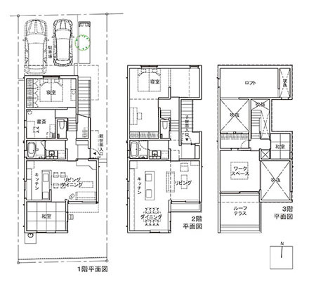
都市公園の緑を借景とする、木造3階建ての二世帯住宅です。
敷地は間口が狭く、南北に細長い形状となる建物配置の中央部で床が半層ずれるスキップフロアを採用しました。6つの床レベルのうち最下は駐輪場や収納スペース、その上2枚が親世帯、更に上の3枚が子世帯という断面構成です。各世帯の住戸内にあるレベル差は公私の領域を明確にし、生活に変化やメリハリをもたらすことを意図しています。また、最上階にあるワークスペースからは南側の景色が一望でき、ルーフテラスと一体となった広がりのある場所となっています。
内外とも建築はごくシンプルで控えめな設えですが、そこには空間の最終決定権をデザインにも精通される住まい手に委ねる思惑があります。プランを効率よくまとめるために必要な奥まった玄関へのアプローチ空間を退屈なものにせず、魅力的に人をいざなうために採用した、軒天の無垢のチーク材が設計者の仕掛けた唯一のアクセントです。 

計画概要
所在地 目黒区青葉台
主要用途 個人住宅
家族構成 親夫婦/子夫婦+子1人
設計 建築 遠藤誠建築設計事務所
   構造 野村基建築構造設計
施工 近藤工務店>
撮影 遠藤誠建築設計事務所

 
敷地面積 172㎡(52坪)
建築面積 83㎡(25坪)
延床面積 183㎡(55坪)
構造 木造軸組構法
階数 地上2階
設計期間 2014.09~2016.03
施工期間 2016.04~2016.11