遠藤誠建築設計事務所
MAKOTO ENDO ARCHITECTS

MAKOTO ENDO ARCHITECTS


浜田山の家 <前のページ 次のページ>
-ギャラリースタイル、ミニマリズムの調べ-

 
 
 
 
 

私が講師をしている大学の齊藤先生からご紹介いただいたプロジェクトです。ラフプランができていた状態から後を引き継ぐかたちでしたので、コンセプト強化のための設えに重点を置き設計を進めました。以下は齊藤先生が考えられた設計主旨ですが、そのまま掲載させていただきます。
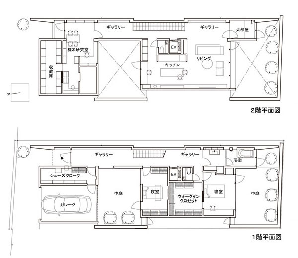
「南北に細長い敷地を活かした、2つの中庭をもつ明るく広がりのある住宅です。玄関を入ると上がり框のない土間が広がり、敷地奥に植わるオリーブの古木まで20mほど見通せます。この空間は建物の主動線であると同時にギャラリーであり、壁のニッチに展示された白磁が日々の生活に優美さと張りを与えてくれます。各部屋は強い日差しの入る東西方向に窓を設けず、中庭に面して開いています。どの窓からも緑の揺らぎを眺めることができ、中庭に反射する柔らかい光と緑を介してそれぞれの部屋が緩やかに繋がっています。建築の表現は華美に流れず、やや硬質で清潔感のある印象にまとめることを心がけました。あえて木目調を取り入れずモノトーンを主に構成することで、自然光や緑の変化をより繊細に感じられるよう意図しています。」 

計画概要
所在地 杉並区浜田山
主要用途 個人住宅
家族構成 夫婦
設計 建築 遠藤誠建築設計事務所
   構造 野村基建築構造設計
施工 山菱工務店>
キッチン リネアタラーラ>
撮影 小笠原岳>

 
敷地面積 253㎡(76坪)
建築面積 126㎡(38坪)
延床面積 243㎡(74坪)
構造 木造軸組構法
階数 地上2階
設計期間 2015.06~2016.01
施工期間 2016.02~2016.10