遠藤誠建築設計事務所
MAKOTO ENDO ARCHITECTS

MAKOTO ENDO ARCHITECTS


深沢S邸 <前のページ 次のページ>
-空間が連続し家族が繋がる立体回遊プランー

 
 
 
 
 
 

この住宅もハウスコのコンペ「空間と家族とリゾート感の融合した家」でご採用いただいたプロジェクトです。
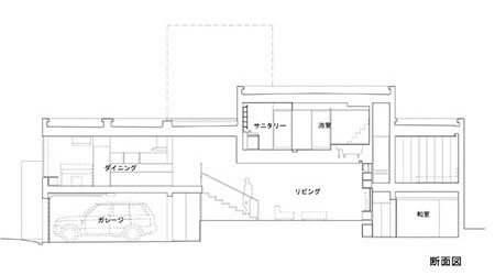
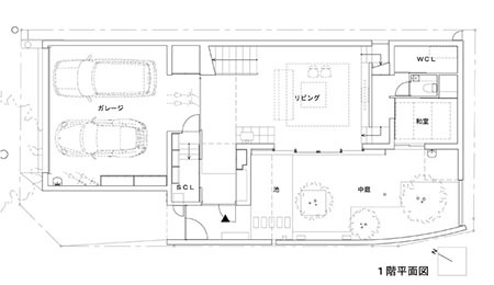
施主のSさんに最初にお会いした時、いただいたリクエストの中で印象的だったコメントは「理想は平屋」ということ。もちろん敷地や諸条件から物理的にそれは不可能。しかし家族の繋がりを最重要に考え、どこにいても家族の気配が感じ取れることを熟考した結果、全体を1/3 層づつずれるスキップフロアとして、空間のシークエンスを最大限に活かした構成に、また、その延長で、階段で上り下りしながら、最終的にはぐるっと家の中を一周できる回遊プランとすることにもなりました。(平面図1階・2階・3階)
その他にもこの3階建ての大きな住宅には、いたるところに空間演出の仕掛けがちりばめられています。各々のコーナーで気持ちの良いシーンが生まれ、それらが連続してひとつのストーリーとなることを目指しています。

計画概要
所在地 世田谷区深沢
主要用途 個人住宅
家族構成 夫婦+子2人
設計 建築 遠藤誠建築設計事務所
   構造 野村基建築構造設計
施工 ISA企画建設
キッチン リネアタラーラ>
撮影 鈴木豊/水谷綾子

 
敷地面積 224㎡(68坪)
建築面積 134㎡(41坪)
延床面積 270㎡(82坪)
構造 RC壁式構造
階数 地上3階
設計期間 2011.07~2012.02
施工期間 2012.03~2012.12