遠藤誠建築設計事務所
MAKOTO ENDO ARCHITECTS

MAKOTO ENDO ARCHITECTS


小田原Y邸 <前のページ 次のページ>
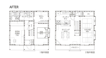
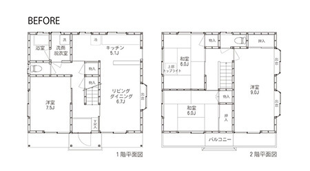
2階リビングにプラン変更する戸建てリノベ

 
 
 
 
 
 

施主のYさんとは建築家ネットワークASJの西湘スタジオ(瀬戸建設)のイベントにて知り合いました。戸建て住宅改修のご相談でしたが、現在はお子さまも巣立ちご夫婦ふたりに、これからは生活スタイルも変化(家での滞在時間が長く)とのことでしたので、思いきって1階にあったLDKを日当たりの良い2階に移動する大幅なプラン変更をご提案しました。(改修後平面図)また、間仕切りや建具は引き戸を多用することで季節変化する熱環境に応じたフレキシブルな間取りに、更に、1、2階とも階段周囲を回遊できるプランにもなったことで、便利さだけでなく住まいに広がりや奥行を与えることができたのではないかと考えています。
これからの日本は少子高齢化、人口減少が進み、住宅ストック数は既に世帯数を上回っていることなどから、新築が減りこうした大幅改修工事(リノベーション)が加速度的に増加すると言われています。この計画はそういったケースのひとつのプロトタイプになるのではないかと感じています。

計画概要
所在地 神奈川県小田原市
主要用途 個人住宅
家族構成 夫婦
設計 建築 遠藤誠建築設計事務所
施工 瀬戸建設>
撮影 遠藤誠建築設計事務所

 
改修部分面積 93㎡(28坪)
構造 木造軸組構法
階数 地上2階
設計期間 2013.10~2014.01
施工期間 2014.08~2014.11