遠藤誠建築設計事務所
MAKOTO ENDO ARCHITECTS

MAKOTO ENDO ARCHITECTS


岡本N邸 <前のページ 次のページ>
シンプル&ラグジュアリーなマンション改修

 
 
 
 
 

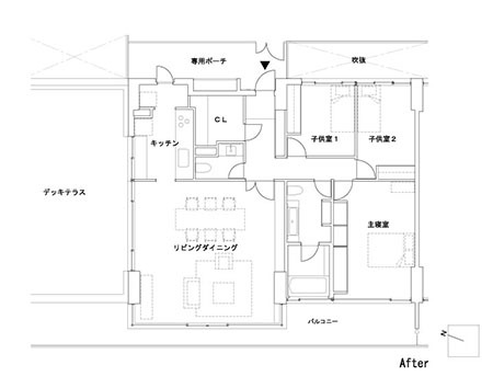
私が坂倉事務所時代に設計したマンションの一室のリフォームです。中古で購入した施主のNさんは、ホームページで私が設計したことを知り「どうせならリフォームも同じ人に設計を…」ということで連絡いただきました。驚いたのはこのNさん、建築の超エリートコースをまっしぐらという学歴の方で、でも今は建築とは無関係のお仕事をされています。そんなデザインを熟知されている方に設計をご依頼いただいたことは大変光栄なことですが、それ以上に嬉しかったのは私の設計した建築が10年近く経ってもなお、そういう方に評価していただいたということ。今後も長く愛される建築をつくっていきたい!と改めて思った次第です。
設計スタートして間もなくのころ、私の事務所も見てみたいということで美味しいワインご持参でお越しくださった時は建築話で盛り上がりました。(Nさんにとっては久しぶり?でもちょっと飲みすぎた…)今度は私が新居祝いのワイン片手にお邪魔して、天気の良い昼下がりにデッキテラスで…、楽しみです。

計画概要
所在地 世田谷区岡本
主要用途 個人住宅
家族構成 夫婦+子1人
設計 遠藤誠建築設計事務所
施工 リトラス 清水芳徳
撮影 遠藤誠建築設計事務所

 
改修部分面積 123㎡(37坪)
構造 RC造ラーメン構造
階数 地上3階地下2階の内2階部分
設計期間 2012.03~2012.04
施工期間 2012.04~2012.06