遠藤誠建築設計事務所
MAKOTO ENDO ARCHITECTS

MAKOTO ENDO ARCHITECTS


桃井M邸 <前のページ 次のページ>
-中庭を中心としたコの字型立体コートハウス-

 
 
 
 

敷地は四方が建物で囲まれた旗竿形状です。このような住環境の場合によく推奨する、2階リビングの立体コートハウスをご提案しました。
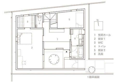
1階はコの字型の配置、門扉を介して一旦中庭を経由してから玄関にアプローチするスタイル。センターからアクセスすることによって廊下面積が最小限のコンパクトなプランを実現しています。一方2階は勾配天井を持つ大きく開放的なLDKが中心で、南側にはデッキテラス、中庭上部の吹抜け、小さな和室が一列に並ぶという構成です。この中庭は完全なプライバシーが確保されており、適度な採光や通風を享受するとともに、住まいの各所から窺える魅力的な中間領域となっています。
ただし・・・、中庭を経由しての搬入を予定していた2階の大型のソファーの納品が遅れてしまったため、この中庭の植栽工事が引渡し後だいぶずれ込んでしまいました。年末ぎりぎりとなって、ソファー納品、その直後に樹形の綺麗な株立ちのアオダモが中庭に居座って、これでやっと!気持ちのよいお正月が迎えられるのではないでしょうか。

計画概要
所在地 杉並区桃井
主要用途 個人住宅
家族構成 夫婦+子1人
設計 建築 遠藤誠建築設計事務所
   構造 野村基建築構造設計
施工 近藤工務店>
撮影 遠藤誠建築設計事務所

 
敷地面積 132㎡(40坪)
建築面積 60㎡(18坪)
延床面積 106㎡(32坪)
構造 木造軸組構法
階数 地上2階
設計期間 2014.10~2015.03
施工期間 2015.04~2015.09