遠藤誠建築設計事務所
MAKOTO ENDO ARCHITECTS

MAKOTO ENDO ARCHITECTS


元石川M邸 <前のページ 次のページ>
-おおらかな片流れ屋根の下から望む眺めの家-

 
 
 
 

建主のMさんには、前から何度か当事務所のオープンハウスにお越しいただいており、特に若林M邸を気に入っていただいたとのことで、敷地が決まる前から新居設計のご依頼を受けていました。土地探しの協力「style is>」もありやっと見つかったこの敷地は、緑豊かな環境の高台にあり、計画的には西側隣地の緑地や北側遠方まで広がる眺望をどのように取り込むかがカギになります。
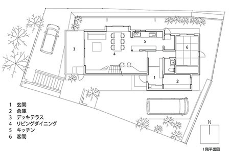
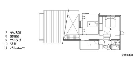
この住まいの特徴は西下り片流れの大屋根、その下は勾配天井を持つLDで、可動間仕切りを介して2階の子供部屋まで空間が連続します。リビング西側は一層下のレベルにある駐車場上まで張り出すデッキテラス、その上は夏の西日をカットする深い軒としました。
その他の各部屋も基本は北向きの配置構成で、それぞれピクチャーウィンドウが設けられています。特にダイニングの北側には高さを テーブルに合わせた横長の出窓があり、この北東角の椅子(多分奥さまの席)がこの家の特等席になるのではないかと思っています。

計画概要
所在地 横浜市青葉区元石川
主要用途 個人住宅
家族構成 夫婦+子2人
設計 建築 遠藤誠建築設計事務所
   構造 野村基建築構造設計
施工 バウムスタンフ>
撮影 遠藤誠建築設計事務所

 
敷地面積 262㎡(79坪)
建築面積 79㎡(24坪)
延床面積 122㎡(37坪)
構造 木造軸組構法
階数 地上2階
設計期間 2014.07~2014.12
施工期間 2015.01~2015.08